площадью 604,91 м2, по цене 90736500 по адресу деревня Спас-Каменка - Спас-Каменка кп,1

Цена 90 736 500 р.
Адрес деревня Спас-Каменка, Спас-Каменка кп,1
Площадь помещения 604,91 м2
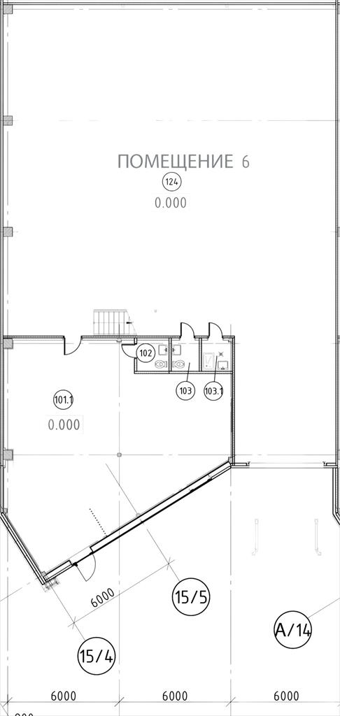
Продается новое производственно-складское помещение по Дмитровскому шоссе. ICPARK ""КЛЮЧ"" Продажа осуществляется напрямую от собственника парка, что гарантирует отсутствие каких-либо комиссий и скрытых платежей! Объект расположен в северном направлении с выездом на Дмитровское шоссе (4 км). Расстояние от МКАД - 30 км. Координаты: 56.148996, 37.449949 Формат Point. Блок А, Бокс 6. Планировочное решение включает в себя пространство для производства, склад или логистику 356,85 кв.м, а также офисную часть 120,60 кв.м. Наличие мезонина. ОСНОВНЫЕ ХАРАКТЕРИСТИКИ: - Класс: A - Температура: Сухой склад - Автоматическая спринклерная система пожаротушения - Высота: 8 м - Нагрузка на пол: 5 т/кв.м - Высококачественные бетонные полы с антипылевым покрытием и упрочняющим слоем - Сетка колонн: 12x24 - Ворота: докового типа и на нулевой отметке КОММУНИКАЦИИ: - Электричество: 25 кВт (возможно увеличение мощности) - Вентиляция: приточно-вытяжная - Водоснабжение, канализация - Индивидуальные приборы учета ИНФРАСТРУКТУРА: - Парковки для транспорта: для грузовых авто — 2 места, для легкового авто — 4 места - Доступ к производственно-складским помещениям 24/7 - Охраняемая территория - Видеонаблюдение - Скоростной интернет и телефония ДОПОЛНИТЕЛЬНО: - Собственная профессиональная управляющая компания - Клининг - Консьерж-сервис - Мобильное приложение - Маркетплейс услуг - Кафе на территории - Зоны отдыха и спортивные площадки Готовы предоставить подробную информацию и организовать просмотр!
Объявление № 23374593
Дата подачи:
14 октября 2025 г. 3:20
Дата обновления:
13 октября 2025 г. 4:00
Просмотров 6 Хотите продать быстрее?

Продавец
Отдел продаж
Показать номер телефона
Пожаловаться
Комментарии:
Добавить